Crawford School Renovation Plans - Second Floor
![]() |
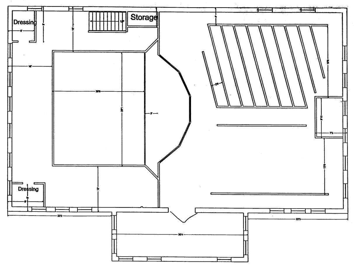
| Auditorium
Seating: 185 –
Keeps existing raked floor for improved view of stage.
A!O currently has 300 upholstered auditorium seats in
storage. Center aisle with 4' side aisles.
Stage Area: 20’x26’ with movable curtains for easy access to wings. Apron: Enlarged (half-round) for smaller performances and events not requiring a full stage. |